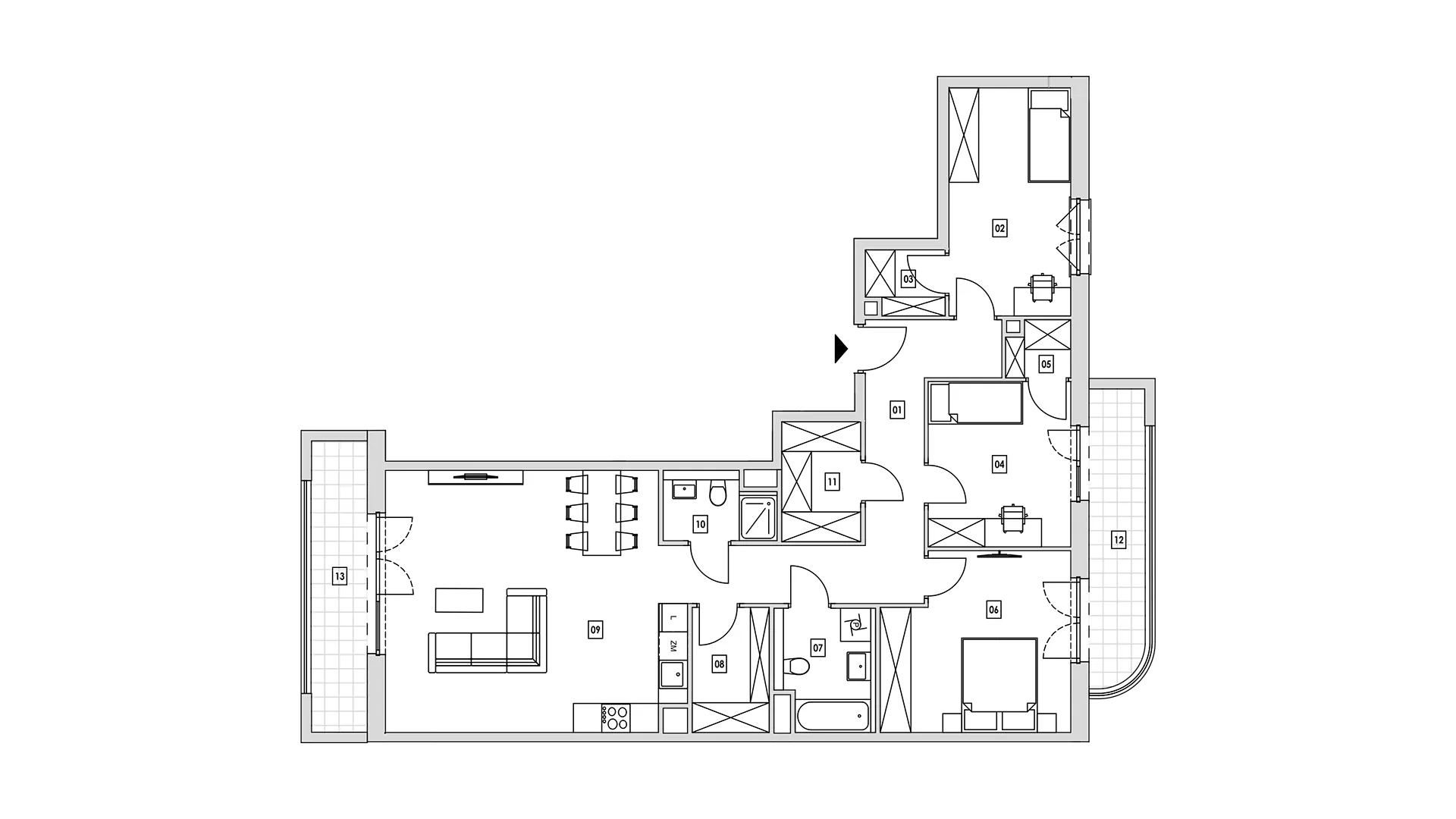
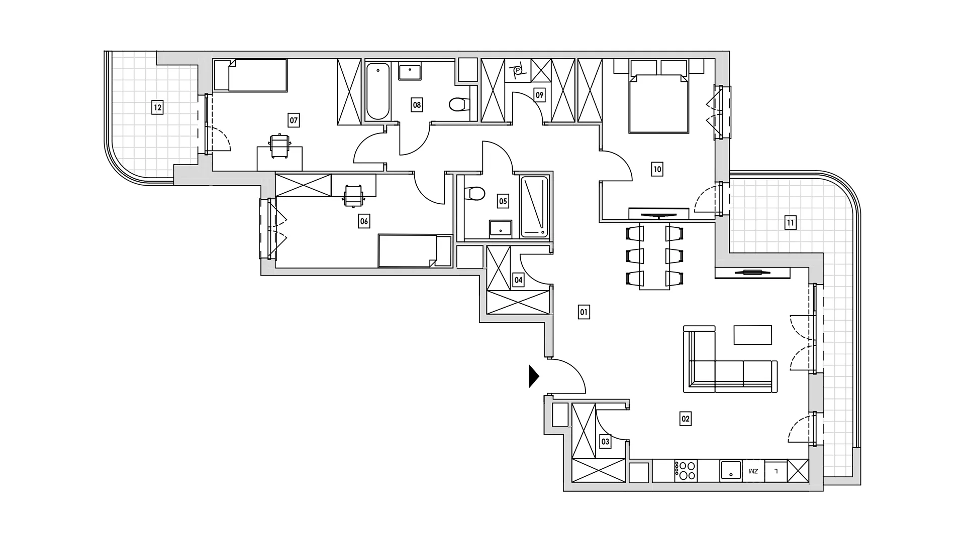
Mieszkanie Z1.B.M2

Cena całkowita brutto:
1 104 432,00 PLN
Cena mieszkania brutto:
1 048 432,00 PLN
Cena brutto za m²
10 090,78 PLN/m²
Status
Wolne
Typ lokalu
Mieszkanie
Powierzchnia
103.90 m²
Etap
I
Budynek
Z1.B
Kondygnacja
2
Pokoje
5
Balkon
15.72 m²
Gotowe do odbioru
Tak
Wkrótce gotowe do odbioru
Tak
Kierunki
N-S
Stan
deweloperski
Składowe ceny całkowitej
Miejsce rodzinne (zależne) w hali garażowej B-MG-3+4
56 000,00  PLN
Inne świadczenia pieniężne, które Nabywca będzie zobowiązany spełnić na rzecz Dewelopera:
- koszty utrzymania nieruchomości wspólnej oraz lokalu, począwszy od dnia odbioru Lokalu przez Nabywcę, według zasad określonych w umowie deweloperskiej,
- opłata za pakiety wykończeniowe czy zmiany lokatorskie – według indywidualnego zamówienia dokonanego przez Nabywcę do nabywanego Lokalu.
Galeria
Skwer Harmonia
Kraków
Napisz do nas





    Wyślij zawartość schowka
    na swój email

      Tutaj pojawią się mieszkania, jeśli dodasz je do schowka