Mieszkanie 8C-4-9 Promocja

Cena całkowita brutto:
599 330,00 PLN Najniższa cena z 30 dni przed obniżką:
10 642,04 PLN/m² | 654 698,00 PLN

Cena mieszkania brutto:
599 330,00 PLN
Najniższa cena z 30 dni przed obniżką: 654 698,00 PLN
Cena brutto za m²
9 742,04 PLN/m²
Status
Wolne
Typ lokalu
Mieszkanie
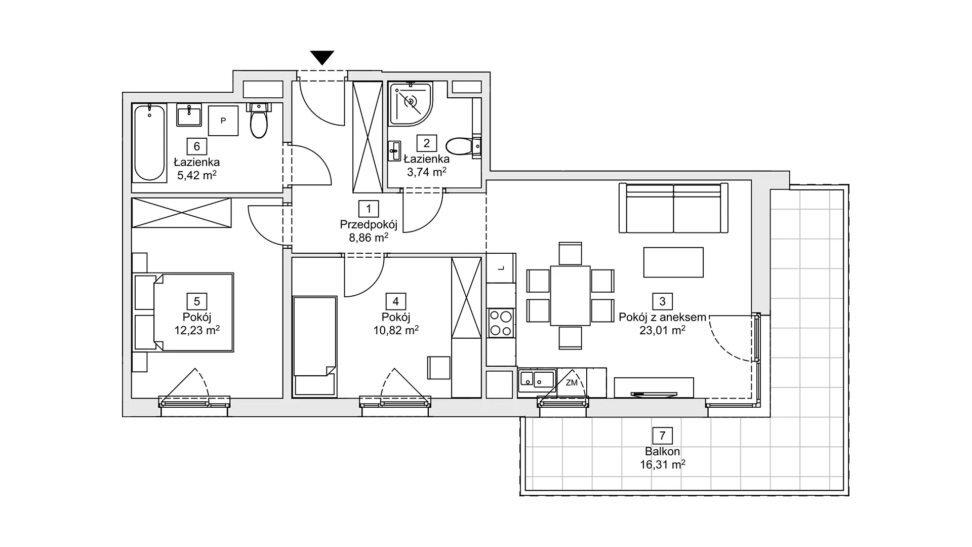
Powierzchnia
61.52 m²
Etap
II
Budynek
8
Kondygnacja
4
Pokoje
2
Balkon
19.69 m²
Wkrótce gotowe do odbioru
Tak
Stan
deweloperski
Inne świadczenia pieniężne, które Nabywca będzie zobowiązany spełnić na rzecz Dewelopera:
- koszty utrzymania nieruchomości wspólnej oraz lokalu, począwszy od dnia odbioru Lokalu przez Nabywcę, według zasad określonych w umowie deweloperskiej,
- opłata za pakiety wykończeniowe czy zmiany lokatorskie – według indywidualnego zamówienia dokonanego przez Nabywcę do nabywanego Lokalu.
Naramowice Odnova II
Poznań
Napisz do nas





    Wyślij zawartość schowka
    na swój email

      Tutaj pojawią się mieszkania, jeśli dodasz je do schowka