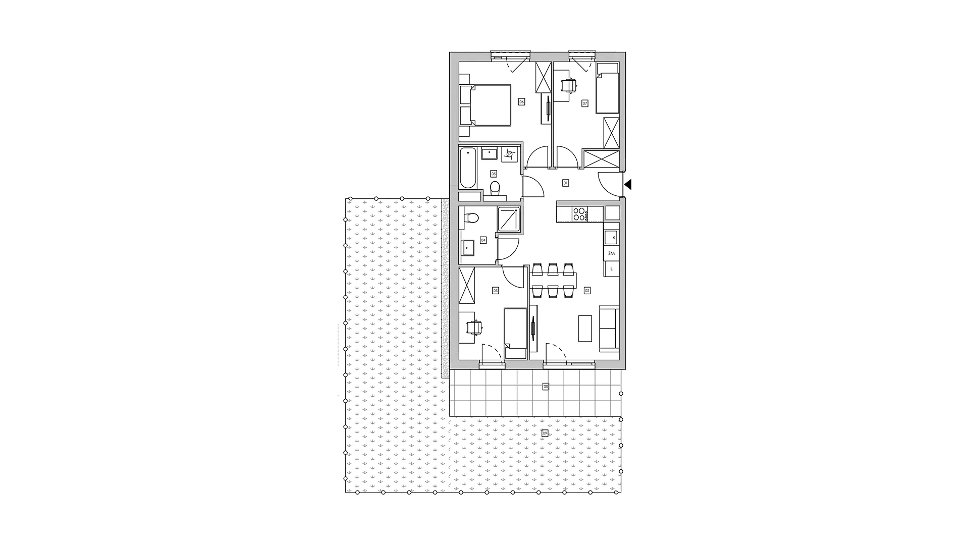
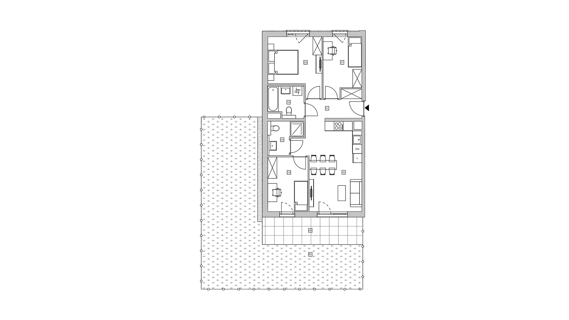
Mieszkanie 1B.07

Cena mieszkania brutto:
1 020 022,00 PLN
Cena brutto za m²
14 871,29 PLN/m²
Status
Wolne
Typ lokalu
Mieszkanie
Powierzchnia
68.59 m²
Etap
I
Budynek
1B
Kondygnacja
1
Pokoje
3
Balkon
8.15 m²
Kierunki
N-E
Stan
deweloperski
Inne świadczenia pieniężne, które Nabywca będzie zobowiązany spełnić na rzecz Dewelopera:
- koszty utrzymania nieruchomości wspólnej oraz lokalu, począwszy od dnia odbioru Lokalu przez Nabywcę, według zasad określonych w umowie deweloperskiej,
- zwrot Deweloperowi kwoty w wysokości opłaty przekształceniowej / opłaty za użytkowanie wieczyste odpowiadającej udziałowi Lokalu w nieruchomości od dnia zawarcia Umowy Przenoszącej Własność lokalu do końca bieżącego roku kalendarzowego, w którym zostanie ona zawarta, według zasad określonych w umowie deweloperskiej,
- opłata za pakiety wykończeniowe czy zmiany lokatorskie – według indywidualnego zamówienia dokonanego przez Nabywcę do nabywanego Lokalu.
Akacjowa Wita
Kraków
Napisz do nas





    Wyślij zawartość schowka
    na swój email

      Tutaj pojawią się mieszkania, jeśli dodasz je do schowka