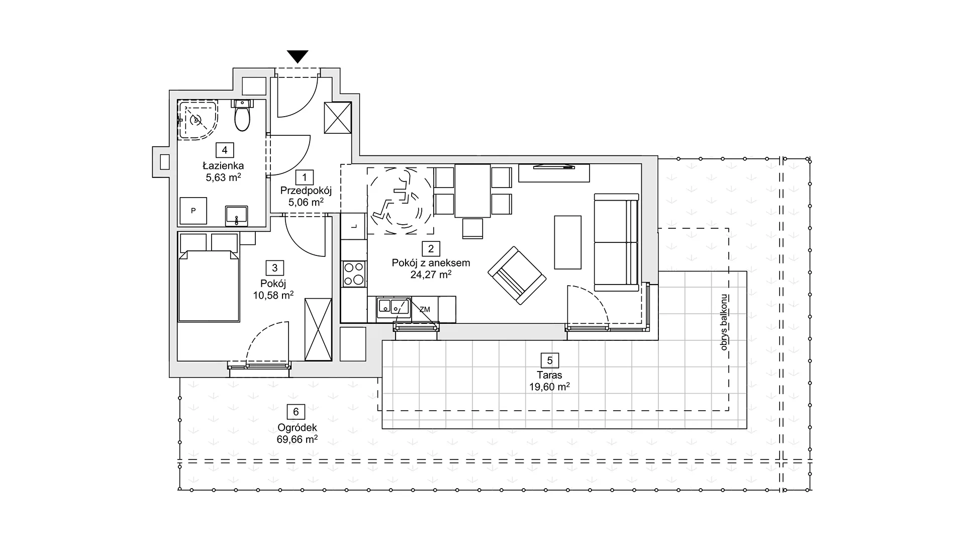
Mieszkanie 1B-0-3

Cena mieszkania brutto:
479 322,00 PLN
Cena brutto za m²
10 993,62 PLN/m²
Status
Wstępna rezerwacja
Typ lokalu
Mieszkanie
Powierzchnia
43.60 m²
Etap
I
Budynek
1
Pokoje
2
Balkon
3.17 m²
Ogródek
38.07 m²
Gotowe do odbioru
Tak
Wkrótce gotowe do odbioru
Tak
Kierunki
N-S
Stan
deweloperski
Inne świadczenia pieniężne, które Nabywca będzie zobowiązany spełnić na rzecz Dewelopera:
- koszty utrzymania nieruchomości wspólnej oraz lokalu, począwszy od dnia odbioru Lokalu przez Nabywcę, według zasad określonych w umowie deweloperskiej,
- opłata za pakiety wykończeniowe czy zmiany lokatorskie – według indywidualnego zamówienia dokonanego przez Nabywcę do nabywanego Lokalu.
Naramowice Odnova
Poznań
Napisz do nas





    Wyślij zawartość schowka
    na swój email

      Tutaj pojawią się mieszkania, jeśli dodasz je do schowka