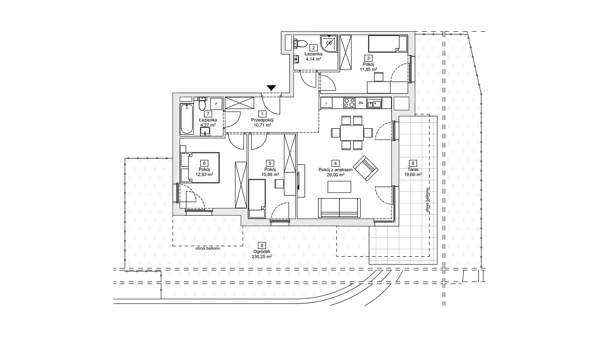
Mieszkanie 1A-4-1

Cena całkowita brutto:
835 651,00 PLN
Cena mieszkania brutto:
821 721,00 PLN
Cena brutto za m²
10 177,37 PLN/m²
Status
Wolne
Typ lokalu
Mieszkanie
Powierzchnia
80.74 m²
Etap
I
Budynek
1
Kondygnacja
4
Pokoje
3
Balkon
17.14 m²
Gotowe do odbioru
Tak
Wkrótce gotowe do odbioru
Tak
Kierunki
N-S
Stan
deweloperski
Składowe ceny całkowitej
Komórka lokatorska 1.KL.43.(-1)
13 930,00  PLN
Inne świadczenia pieniężne, które Nabywca będzie zobowiązany spełnić na rzecz Dewelopera:
- koszty utrzymania nieruchomości wspólnej oraz lokalu, począwszy od dnia odbioru Lokalu przez Nabywcę, według zasad określonych w umowie deweloperskiej,
- opłata za pakiety wykończeniowe czy zmiany lokatorskie – według indywidualnego zamówienia dokonanego przez Nabywcę do nabywanego Lokalu.
Naramowice Odnova
Poznań
Napisz do nas





    Wyślij zawartość schowka
    na swój email

      Tutaj pojawią się mieszkania, jeśli dodasz je do schowka