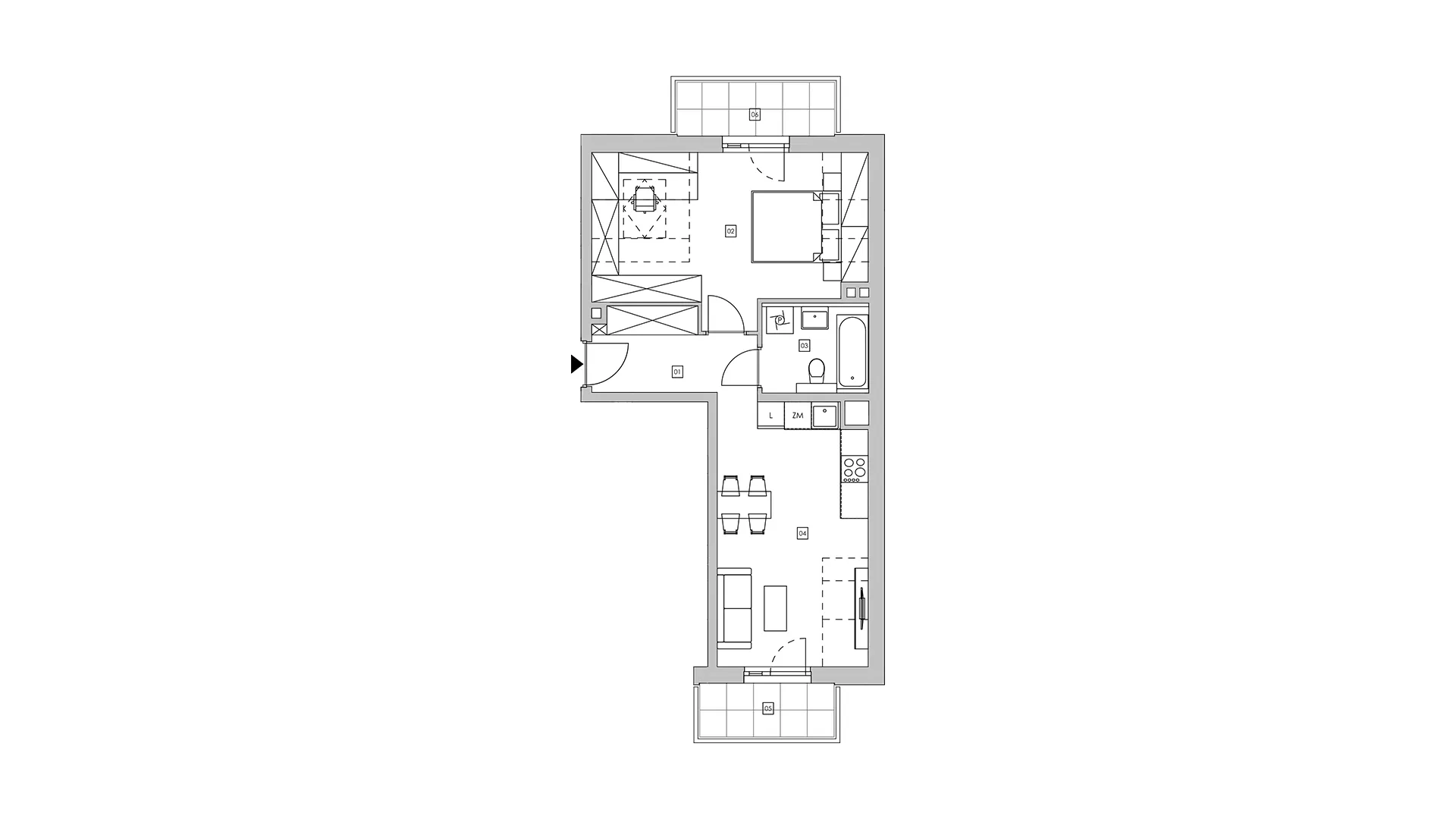
Mieszkanie AIII.0.M80

Cena mieszkania brutto:
696 852,00 PLN
Cena brutto za m²
15 600,00 PLN/m²
Status
Wolne
Typ lokalu
Mieszkanie
Powierzchnia
44.67 m²
Etap
I
Budynek
A
Pokoje
2
Ogródek
39.17 m²
Gotowe do odbioru
Tak
Wkrótce gotowe do odbioru
Tak
Kierunki
W
Stan
deweloperski
Inne świadczenia pieniężne, które Nabywca będzie zobowiązany spełnić na rzecz Dewelopera:
- koszty utrzymania nieruchomości wspólnej oraz lokalu, począwszy od dnia odbioru Lokalu przez Nabywcę, według zasad określonych w umowie deweloperskiej,
- zwrot Deweloperowi kwoty w wysokości opłaty przekształceniowej / opłaty za użytkowanie wieczyste odpowiadającej udziałowi Lokalu w nieruchomości od dnia zawarcia Umowy Przenoszącej Własność lokalu do końca bieżącego roku kalendarzowego, w którym zostanie ona zawarta, według zasad określonych w umowie deweloperskiej,
- opłata za pakiety wykończeniowe czy zmiany lokatorskie – według indywidualnego zamówienia dokonanego przez Nabywcę do nabywanego Lokalu.
Przewóz 42 ATAL
Kraków
Napisz do nas





    Wyślij zawartość schowka
    na swój email

      Tutaj pojawią się mieszkania, jeśli dodasz je do schowka